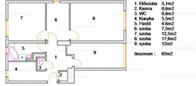
Zuglóban , Egressy téren magasföldszinti 3+1 félszobás 65m2 teljesen felújított lakás , új gépesített konyhával eladó.
A 3 szoba külön nyílik egy külön étkező , konyha , közlekedő WC és fürdőszoba , valamint egy kis tároló. WC és fürdő külön helységben.
A lakáshoz tartozik egy 21 m2 pince tároló fele használatra.
A fűtés és radiátorok felújítása 2019-ben kéménybéleléssel egybekötve megtörtént.
Korszerű kondenzációs kazán látja el a fűtés és melegvíz ellátást.
A lakásban a teljeskörű víz – villany hálózat cseréje korábbi években megtörtént.
A nyílászárók cseréje 2 dupla faablakot kivéve , szintén megtörtént.( természetes szellőzés miatt lett bent hagyva)
Az ablakok redőnnyel , szúnyoghálóval valamint szalagfüggönnyel vannak ellátva.
A lakás kiváló helyen található mint közlekedés szempontjából , valamint a közelben minden megtalálható ( iskola , óvoda , boltok , éttermek , patika stb. )
Teljes körűen felújított :
•Villanyhálózat cserélve , 25A , firelével ellátott
•Vízvezeték cserélve
•Kémény kibélelve , Ariston kondenzációs kazán
•Korszerű , új radiátorok
•Teljesen új , gépesített konyha : beépített tűzhely , főzőlap ,-mosogatógép , szag elszívó , modern mosogatótálca csapteleppel.
•Tisztaságifestés , új mennyezeti lámpák
•Műanyag nyílászáró ablakok , redőnnyel , szúnyoghálóval , szalagfüggönnyel
•Új gáz és vízóra a lakásban
•Saját Használatra 10,5m2 pince
•Házban strangok cserélve , villanyhálózat felújítva
•Lépcsőházban új műanyag nyílászárók , bejárati ajtók
