Az ingatlan egy kilenc lakásos, 2 emeletes, zárt parkosított telken fekvő társasházban található, egy átmenő forgalomtól mentes utcában, zöldövezetben, családi házak szomszédságában, csendes és biztonságos környéken.
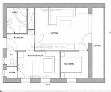
A lakás Dny-i fekvésű, SZIGETELT társasházban található, NYÍLÁSZÁRÓK műanyagok, klímás, cirkófűtéses, kedvező rezsivel rendelkezik
És még egy ritkaság:
A lakáshoz opcionálisan egy önálló 16nm-es garázs is vásárolható (+ 10 millió HUF) a társasház aljában.
Nagy lehetőség, mivel csak 4 garázs van a házban! A garázsban villany és víz is van és télen fűtés nélkül is fagymentes!
Az utcán is biztonságosan lehet parkolni, de egy önálló garázs nagy kincs Budapesten.
A lakáshoz természetesen tartozik egy alagsori tároló is.
