Az épület:
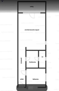
Ez a napfényes, első emeleti lakás egy 2005-ben épült, téglaépítésű társasházban található. Alapterülete 43 m², melyhez egy 4 m²-es, déli fekvésű erkély is tartozik, így a természetes fény egész nap bejárja a tereket. A lakás a belső udvarban helyezkedik el, így rendkívül csendes és biztonságos környezetet biztosít az ott lakók számára.
Parkolás:
Az ingatlanhoz tartozik egy fedett autóbeálló is, amely használati joggal vehető igénybe (ennek ára: 2 millió Ft). Ez különösen praktikus, ha fontos számodra a kényelmes parkolás, esőtől és hótól védett helyen.
A lakás:
Világos terekkel és déli fekvésű erkéllyel rendelkezik, amely kellemes természetes fényt biztosít egész nap.A fűtésről saját gázkazán gondoskodik, amely hatékony és egyedileg szabályozható, a nyári komfortérzetről pedig hűtő-fűtő klíma gondoskodik. A lakás igény esetén teljes bútorzattal is eladó, így akár azonnal költözhető. A társasház rendezett lépcsőházzal és barátságos lakóközösséggel várja új lakóját.
Környezet:
A lakás családbarát, zöldövezeti környezetben található, mégis közel a belvároshoz, így ideális választás azok számára, akik nyugodt környezetre vágynak, de fontos számukra a jó megközelíthetőség is. A tömegközlekedés kiváló: néhány perc sétára elérhetők a villamos- és buszmegállók. A mindennapi bevásárlást megkönnyíti, hogy a közelben több üzlet is található, például Aldi, Spar és Tesco, emellett kávézók, éttermek és cukrászdák is színesítik a környéket. A szabadidős lehetőségekről sem kell lemondani, hiszen a környéken több park, kutyafuttató és szabadtéri edzőpark is rendelkezésre áll.
