Eladó felújított családi ház Rákospalota kertvárosában
3 SZOBÁSSÁ ALAKÍTHATÓ!!!
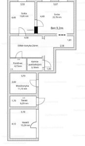
A 72 m²-es lakótér két szobából, tágas konyha-étkezőből, előtérből és fürdőből áll. A konyha-étkező és a fürdőszoba 3 éve teljes felújításon esett át. A gang beépítésével a kamra és a padlásfeljáró közvetlenül a lakásból nyílik – a tetőtér igény szerint beépíthető.
A cserépkályha a két szoba között adja a ház igazi melegét, mely 2025 januárjában teljes felújításon esett át.
A kert 736 m², szépen gondozott, gyümölcsfákkal, málnással, virágokkal és nagy sütögetős résszel. Hátul 2 db kennel, tyúkól, raktár, elöl az udvarban 1-2 autó számára kényelmes parkolás.
A 26 m²-es, teljesen fűtött és szigetelt melléképület három helyiségből áll: egy mosókonyhából, egy tárolóból és egy hűtő-fűtő klímával, WC-vel, kézmosóval felszerelt szobából, amit mi kezelőként használtunk. Ideális vállalkozásra, irodának vagy akár vendégrésznek.
Főbb jellemzők:
•Lakótér: 72 m² (2 szoba, nagy konyha-étkező, előtér, fürdő, kamra)
•Szobák mérete: 22,7 m² és 15,9 m²(okos hűtő-fűtő klímákkal felszerelve)
•Melléképület: 26,3 m² (3 helyiség, egyikben WC + klíma)
•Telek: 736 m², gondozott kert gyümölcsfákkal és málnással
•Fűtés: okos, telefonról vezérelhető padlófűtés + 2 hűtő-fűtő, okos klíma (csak a szobákban)
•Cserépkályha a szobák között
•Gázkazán (radiátorokkal)
•Fürdő és konyha 3 éve felújítva
•Parkolás: 1-2 autó az udvarban, illetve az utcán is (ingyenes)
•Automata öntözőrendszer szivattyúházzal
•Tetőtér beépíthető
Előnyök:
•Intim, csendes kertvárosi környezet
•Praktikus melléképület vállalkozáshoz vagy vendégrésznek
•Kiváló közlekedés (196-os busz az utca végén, 5-ös busz 3 perc séta, villamos, vonat – Nyugati pályaudvar kb. 20 perc)
•A közelben iskola, gimnázium, orvosi rendelő, szakrendelő, boltok (ALDI, Penny, Lidl, Auchan), posta, csomagautomaták
