16. kerület, Cinkota és Árpádföld határán egyik kedvelt, zöldövezeti részén önálló családi ház eladó.
A ház ideális választás azoknak, akik csendes környezetben szeretnének élni.
A lakótér mellett egy jól elkülönülő, ipari árammal ellátott pince is rendelkezésre áll, amely kiváló alap lehet tárolásra vagy vállalkozási célra.
Méret: 163 nm + 96 nm pince
Telek: 540 nm
Az ingatlan 1994-ben épült, jó állapotú, praktikus elrendezésű.
A ház központja egy nagy, világos konyha, étkezővel, ahol kényelmesen együtt tud lenni a család. Innen nyílik a nappali, a terasz és a kert, így a mindennapi élet egy térben zajlik.
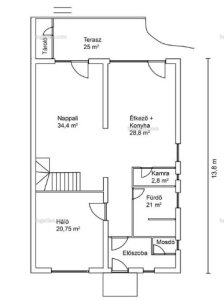
INGATLAN ADATAI:
FÖLDSZINT (106 nm)
Nagy, világos, egybenyitott konyha, étkező, nappali
Kamra
Előszoba
Külön WC kézmosóval
Kádas fürdőszoba
Tágas hálószoba, ahol minden bútor kényelmesen elfér, mégis megmarad a térérzet
25 nm-es déli tájolású fedett terasz
TETŐTÉR (hasznos 57 nm)
3 hálószoba
Kis dolgozószoba
Zuhanyzós fürdőszoba
PINCE (96 nm)
Száraz, jól szellőző, 2,1 méteres belmagassággal
Garázs (1 autó részére)
Jól tagolt terek
Ipari áram
Kialakítása miatt vállalkozásra, raktárnak vagy hobbitérnek is alkalmas, a lakótértől teljesen elkülönül.
MŰSZAKI JELLEMZŐK:
Thermo ablakok és ajtók
Nagy kertre néző teraszablakok
Tetőtéri hűtő-fűtő klíma
Tölgyfa parketta, laminált padló
Tölgyfa lépcső
2023-ban új kondenzációs gázkazán
KERT ÉS KÜLSŐ TÉR
A kert számunkra a nyugalom szigete.
Nem túl nagy, de pont elég ahhoz, hogy az ember kikapcsoljon, kertészkedjen, vagy csak leüljön egy kicsit csendben.
Gondozott előkert és hátsókert
Gyümölcsfák, dísznövények, sziklakert
Kerti tó csobogóval
Térköves kocsibeálló
Kerti tároló, kerti csap
Fedett szeméttároló
KÖRNYÉK
A hely csendes, zöld, jó szomszédok, családbarát - bölcsőde, óvoda a közelben. A Csobaj-bánya pár perc sétára található, ideális sétákhoz, kutyázáshoz. A HÉV-megálló és a Lidl szintén gyalog elérhető. A 274-es buszmegálló pár lépésre van a háztól. Az MO-ás körgyűrű pár perc alatt elérhető autóval.
